| Typ | Vermietung | |
| Bezeichnung | Praxisräume in Wunsiedel | |
| Objekt Nr | 254 | |
| Ort | Wunsiedel | |
| Nutzfläche | 220 m² | |
| Bezug | ab sofort | |
| Baujahr | 1963 | |
| Geschosse | 1 | |
| Beschreibung |
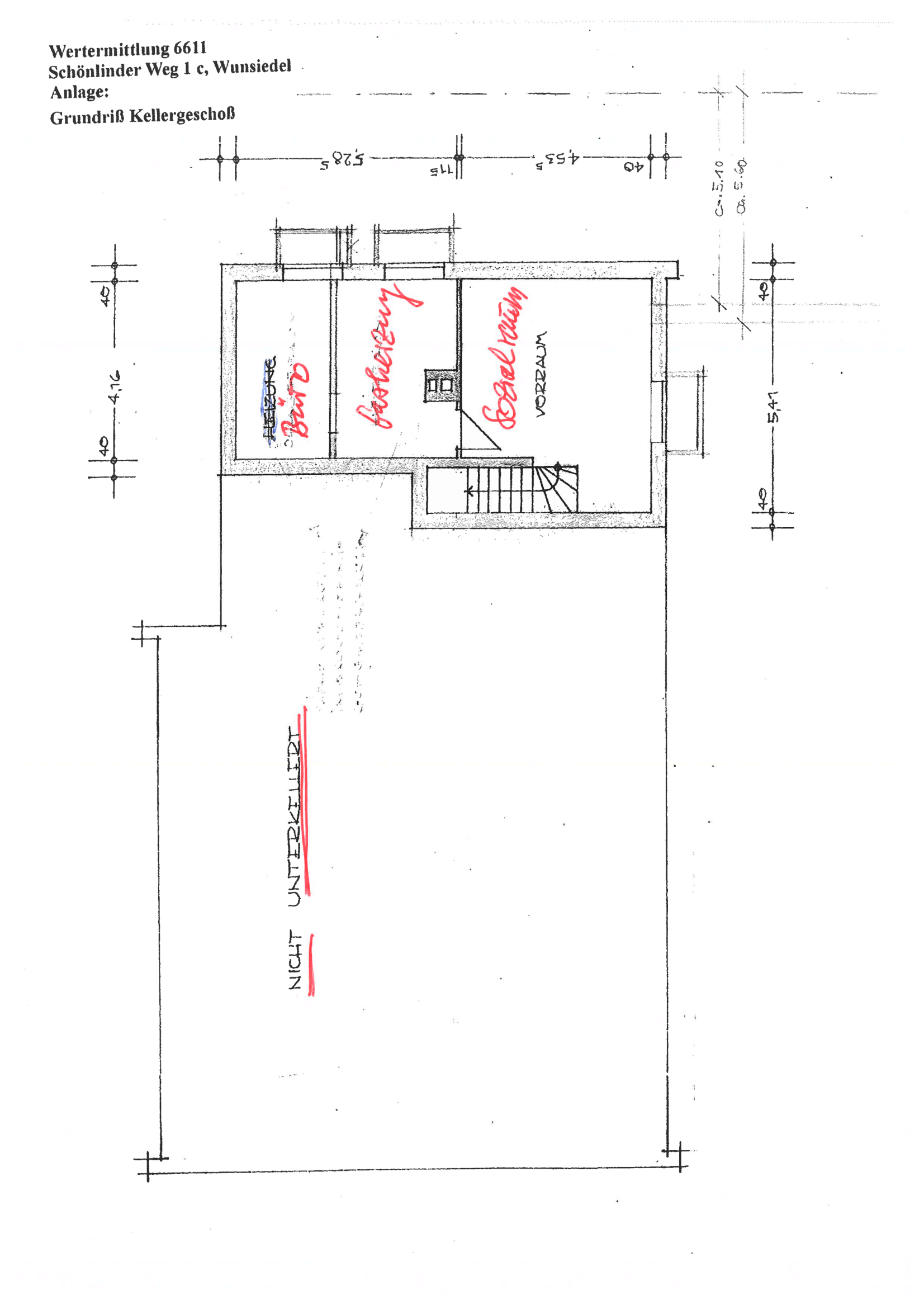
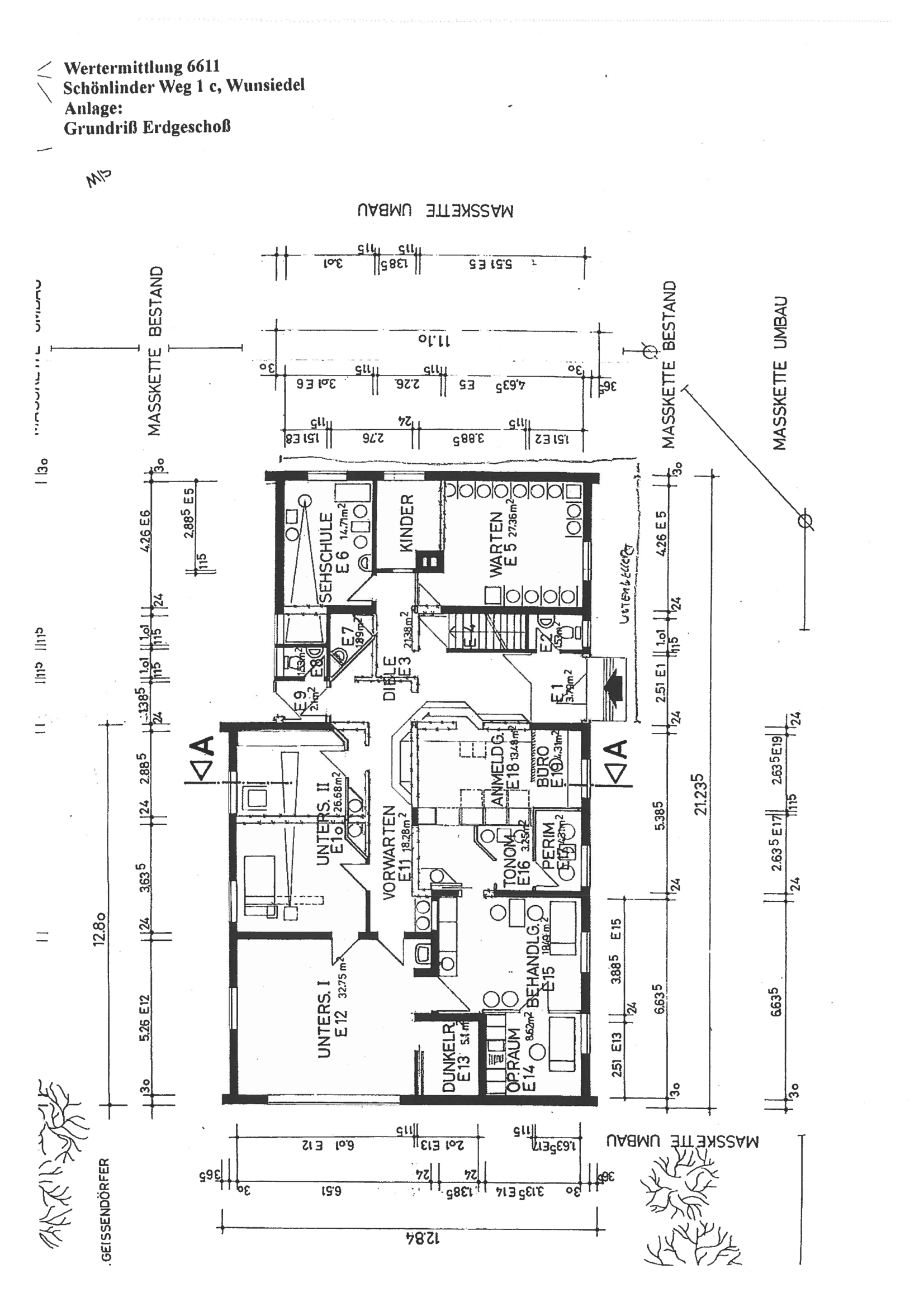
Zentral gelegene Praxisräume in Wunsiedel. Für ein Mietobjekt in Wunsiedel, das seit der Erbauung 1963 als Augenarztpraxis genutzt wurde, wird ein Nachmieter gesucht. Das Gebäude war bis jetzt dauerhaft vermietet. 1980 wurde das Gebäude im Innenbereich nach den damaligen Möglichkeiten für eine Augenarztpraxis funktioneller umgebaut. Das Gebäude ist teilunterkellert und innen elektrisch sehr gut versorgt. Auch als Bürogebäude wäre es gut nutzbar. Wie in der Nordansicht ersichtlich besteht ein barrierefreier Zugang. In der Südostansicht findet sich links ein Parkplatz mit 5 Stellplätzen. |
|
| Ansprechpartner |
WUN Immobilien KU Angela Schwarz Maximilianstraße 27a 95632 Wunsiedel Telefon: 09232-602137 angela.schwarz@wunsiedel.de |
|
| Bilder |
|
|